Многоквартирный жилой дом по Энгельса, 6
- Сообщения: 44051
- Зарегистрирован: 12 мар 2006, 21:47
- Пол: мужской
- Семейное положение: в браке
- Езжу на: Skoda Octavia
- Благодарил (а): 10011 раз
- Поблагодарили: 7920 раз
- Контактная информация:
Многоквартирный жилой дом по Энгельса, 6
Строительство ведет ООО «Южрегионстрой»
Окончание строительства - 4 квартал 2014 года
Количество этажей - 5
Количество квартир - 16
В доме планируются офисные помещения
Место отличное конечно. Тихая улочка, практически центр.
Окончание строительства - 4 квартал 2014 года
Количество этажей - 5
Количество квартир - 16
В доме планируются офисные помещения
Место отличное конечно. Тихая улочка, практически центр.
- Вложения
-
- Паспорт объекта
- IMG_20130730_193743-001.jpg (66.8 КБ) 24056 просмотров
Утром я солнце... Ночью я лунный свет...
Давайте любить свой город.
Поищите в архивах дедушек и бабушек фотографии старого города и поделитесь видами города: gallery/upload/
Давайте любить свой город.
Поищите в архивах дедушек и бабушек фотографии старого города и поделитесь видами города: gallery/upload/
- Paul1965
- Сообщения: 1955
- Зарегистрирован: 08 сен 2007, 18:38
- Пол: мужской
- Благодарил (а): 51 раз
- Поблагодарили: 220 раз
- Контактная информация:
Re: Многоквартирный жилой дом по Энгельса, 6
да, я там каждый вечер прогуливаюсь - будет пятиэтажка. Нормально. Но вот кто в курсе про цены на квартиры?
Я люблю свиней. Собаки смотрят на нас снизу вверх. Кошки смотрят на нас сверху вниз. Свиньи смотрят на нас как на равных. Черчилль У.
- Зодчий
- Сообщения: 2440
- Зарегистрирован: 02 янв 2013, 21:58
- Пол: мужской
- Благодарил (а): 140 раз
- Поблагодарили: 868 раз
Re: Многоквартирный жилой дом по Энгельса, 6
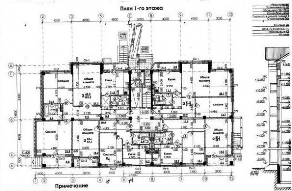
Цена на квартиры 45т.р. за квадрат. Потолки сказали стандарт 2,5 м. Индивидуальное отопление двухконтурный котел на кухне. Штукатурка, и стяжка. Балконы не застеклены. На этаже насколько мне известно 4 квартиры 2 двушки и 2 трешки, площадь двушки около 56 м2 трешки около 75-76 м2. А также имеются четырех и пятикомнатные квартиры на последнем этаже. Парковка напротив дома через дорогу.
Гениальные идеи не пропадают. Они просто ждут своего времени.
И я никогда не сомневаюсь, что это время настанет.
И я никогда не сомневаюсь, что это время настанет.
- Зодчий
- Сообщения: 2440
- Зарегистрирован: 02 янв 2013, 21:58
- Пол: мужской
- Благодарил (а): 140 раз
- Поблагодарили: 868 раз
Re: Многоквартирный жилой дом по Энгельса, 6
Теперь информация точная, потолки в квартирах 2,8 м.
Гениальные идеи не пропадают. Они просто ждут своего времени.
И я никогда не сомневаюсь, что это время настанет.
И я никогда не сомневаюсь, что это время настанет.
-
Настена84
- Сообщения: 145
- Зарегистрирован: 25 апр 2013, 12:40
- Пол: женский
- Семейное положение: в браке
- Езжу на: Хенде Солярис
- Благодарил (а): 59 раз
- Поблагодарили: 42 раза
Re: Многоквартирный жилой дом по Энгельса, 6
Зодчий писал(а):Цена на квартиры 45т.р. за квадрат. Потолки сказали стандарт 2,5 м. Индивидуальное отопление двухконтурный котел на кухне. Штукатурка, и стяжка. Балконы не застеклены. На этаже насколько мне известно 4 квартиры 2 двушки и 2 трешки, площадь двушки около 56 м2 трешки около 75-76 м2. А также имеются четырех и пятикомнатные квартиры на последнем этаже. Парковка напротив дома через дорогу.
Немного неточная информация у вас относительно площадей квартир и цен за квадратный метр. Площади: 2-х комнатные квартиры от 61 до 76 кв. м, трехкомнатные - 106 и 116 кв. м, 4-х комнатные - 130 кв.м. Цена за квадратный метр - 47000.
-
realan
- Сообщения: 174
- Зарегистрирован: 08 июл 2010, 20:27
- Благодарил (а): 156 раз
- Поблагодарили: 102 раза
Re: Многоквартирный жилой дом по Энгельса, 6
Зодчий писал(а):Цена на квартиры 45т.р. за квадрат. Потолки сказали стандарт 2,5 м. Индивидуальное отопление двухконтурный котел на кухне. Штукатурка, и стяжка. Балконы не застеклены. На этаже насколько мне известно 4 квартиры 2 двушки и 2 трешки, площадь двушки около 56 м2 трешки около 75-76 м2. А также имеются четырех и пятикомнатные квартиры на последнем этаже. Парковка напротив дома через дорогу.
откуда информация про парковку? там сейчас газоны. и как бы люди живут и кому охота под окнами парковку получить?
- Lermont
- Phantom of musician
- Сообщения: 5615
- Зарегистрирован: 21 авг 2009, 00:21
- Пол: мужской
- Езжу на: Чём придётся
- Благодарил (а): 665 раз
- Поблагодарили: 1185 раз
- Контактная информация:
Re: Многоквартирный жилой дом по Энгельса, 6
Зодчий писал(а):Парковка напротив дома через дорогу.
За такие вещи надо нахрен лицензии лишать. Заколебали блин, умники. Купят участочек 6 соток, впихнут туда невпихуемое, а потом соседи лишаются газонов и все обочины заставлены машинами.
И вот Петруччо бежит, а Ежи сидит. А река течёт. Таков закон. Закон Ежи.
Re: Многоквартирный жилой дом по Энгельса, 6
А я никак не могу понять, ЧТО ЗА ЦЕНЫ? Понастроят за лямы, а потом дома полупустые стоят, потому что у кого есть такие деньги в Новочеке жилье не покупают.
-
realan
- Сообщения: 174
- Зарегистрирован: 08 июл 2010, 20:27
- Благодарил (а): 156 раз
- Поблагодарили: 102 раза
Re: Многоквартирный жилой дом по Энгельса, 6
18_svr писал(а):А я никак не могу понять, ЧТО ЗА ЦЕНЫ? Понастроят за лямы, а потом дома полупустые стоят, потому что у кого есть такие деньги в Новочеке жилье не покупают.
мало того.. за такие деньги можно купить в Ростове жилье в доме с подземной парковкой и инфраструктурой окло дома. А тут купили участок и строят в метре от соседей. В доме 5!!! этаже , а двор не предусмотрен... лишь бы бабла срубить
-
realan
- Сообщения: 174
- Зарегистрирован: 08 июл 2010, 20:27
- Благодарил (а): 156 раз
- Поблагодарили: 102 раза
Re: Многоквартирный жилой дом по Энгельса, 6
Причем будущий дом на картинке(в первом сообщении темы) изображен в таком прелестном месте и не изображено что он стоит впритык к соседским одноэтажным домам и там совсем нет ни проездов таких, ни места , чтобы машину поставить.. причем нигде по периметру. везде упирается в соседские заборы.. а нарисовано красиво 

- Краса
- Сообщения: 768
- Зарегистрирован: 14 авг 2013, 08:57
- Пол: женский
- Благодарил (а): 121 раз
- Поблагодарили: 39 раз
Re: Многоквартирный жилой дом по Энгельса, 6
всё хотелось узнать что же там строить будут. Действительно, на картинке всё очень красиво, а по факту - где будет парковка? Да... не повезло людям, которые проживают в частных домах рядом с этой стройкой. Теперь их домики и в цене упадут и целый год слушать громыхающие стройтельные машины и тд.
-
realan
- Сообщения: 174
- Зарегистрирован: 08 июл 2010, 20:27
- Благодарил (а): 156 раз
- Поблагодарили: 102 раза
Re: Многоквартирный жилой дом по Энгельса, 6
Краса писал(а):Действительно, на картинке всё очень красиво, а по факту - где будет парковка?
хотят оттяпать у домов напротив газоны и сделать парковку. чудно правда?
Добавлено спустя 8 минут 25 секунд:
жили люди, жили. а потом раз у них вместо цветов, которые наверняка они сами и сажали, стоят машины и воздух от этого совсем не лучше. а дома там одноэтажные и вся эта гарь у них в домах
Добавлено спустя 2 минуты:
а все потому что застройщик тупо хочет больше денег:) поэтому надо на маааасенький участочек воткнуть пятиэтажку без двора , а соседей подвинуть. какие такие соседи, если денег очень хочется.
- rus_cryman
- Сообщения: 24007
- Зарегистрирован: 31 июл 2007, 12:50
- Пол: мужской
- Езжу на: зимней резине
- Благодарил (а): 3381 раз
- Поблагодарили: 5643 раза
Re: Многоквартирный жилой дом по Энгельса, 6
Sarry писал(а):Тихая улочка,
не тихая.
там до баклановского 50 метров и неспящая галинка рядом.
а галинку по вечерам и на кругу так слышно, что окна запирать приходится.
да и баклан ревет всю ночь
-
ЖизнеСлав
- Сообщения: 9459
- Зарегистрирован: 07 авг 2009, 12:45
- Благодарил (а): 738 раз
- Поблагодарили: 915 раз
Re: Многоквартирный жилой дом по Энгельса, 6
Настена84 писал(а):Цена за квадратный метр - 47000.
Это грабеж. С какого потолка они нарисовали такой ценник?

- lampokrut
- Сообщения: 11902
- Зарегистрирован: 22 апр 2010, 01:30
- Пол: мужской
- Семейное положение: свободен
- Езжу на: КИА Сее"d,Каравелле
- Благодарил (а): 80 раз
- Поблагодарили: 564 раза
Re: Многоквартирный жилой дом по Энгельса, 6
ЖизнеСлав писал(а):то грабеж. С какого потолка они нарисовали такой ценник?
Эт че полтора ляма за однокомнатную сильно дорого?
rus_cryman писал(а):не тихая.
там до баклановского 50 метров и неспящая галинка рядом.
а галинку по вечерам и на кругу так слышно, что окна запирать приходится.
С частного сетора не слышно не фига ,а вот на 5м будет и видно!

Не загадывай на завтра-ведь его может и не быть!